

Lieferumfang je Stück: ein Schraubendreher, ohne ZubehörProduktmerkmale:Innensechsrund ISR 15/20 Klingenlänge: 100 mm universell einsetzbar zum Verstellen von Dreh-Kipp-Scheren EcklagernHerstellerangaben:Firma: SchücoHerstellerartikel: 283687Hinweis: Wir empfehlen, das Austauschen von Beschlagteilen sowie das Justieren des Fensters/der Tür durch eine Fachkraft vornehmen zu lassen


Lieferumfang je Stück: ein Schraubendreher, ohne ZubehörProduktmerkmale:Innensechsrund ISR 15/20 Klingenlänge: 55 mmuniversell einsetzbar zum Verstellen vonDreh-Kipp-ScherenEcklagernHerstellerangaben:Firma: SchücoHerstellerartikel: 283689Hinweis: Wir empfehlen, das Austauschen von Beschlagteilen sowie das Justieren des Fensters/der Tür durch eine Fachkraft vornehmen zu lassen


Lieferumfang je Stück: eine Demontagezange, ohne ZubehörProduktmerkmale:zur Demontage von eingeclipsten RiegelstangenHerstellerangaben:Firma: SchücoHerstellerartikel: 289454Hinweis: Wir empfehlen, das Austauschen von Beschlagteilen sowie das Justieren des Fensters/der Tür durch eine Fachkraft vornehmen zu lassen

Lieferumfang je Stück: ein Handeinroller, ohne ZubehörProduktmerkmale:zum einfachen Einrollen von DichtungenHerstellerangaben:Firma: SchücoHerstellerartikel: 298518Hinweis: Wir empfehlen, das Austauschen von Beschlagteilen sowie das Justieren des Fensters/der Tür durch eine Fachkraft vornehmen zu lassen


Lieferumfang je Stück: ein Schraubendreher, ohne ZubehörProduktmerkmale:Innensechsrund ISR 8universell einsetzbar zur Montage von Türbändern Rollentürbändern Treibriegeln Türgriffen T-Verbindern verstellbaren Glasauflagenzum Befestigen vonBolzensicherungenzum Verstellen von Öffnungsbegrenzern RiegelstückenEcklagernEckumlenkungenHerstellerangaben:Firma: SchücoHerstellerartikel: 282183Hinweis: Wir empfehlen, das Austauschen von Beschlagteilen sowie das Justieren des Fensters/der Tür durch eine Fachkraft vornehmen zu lassen


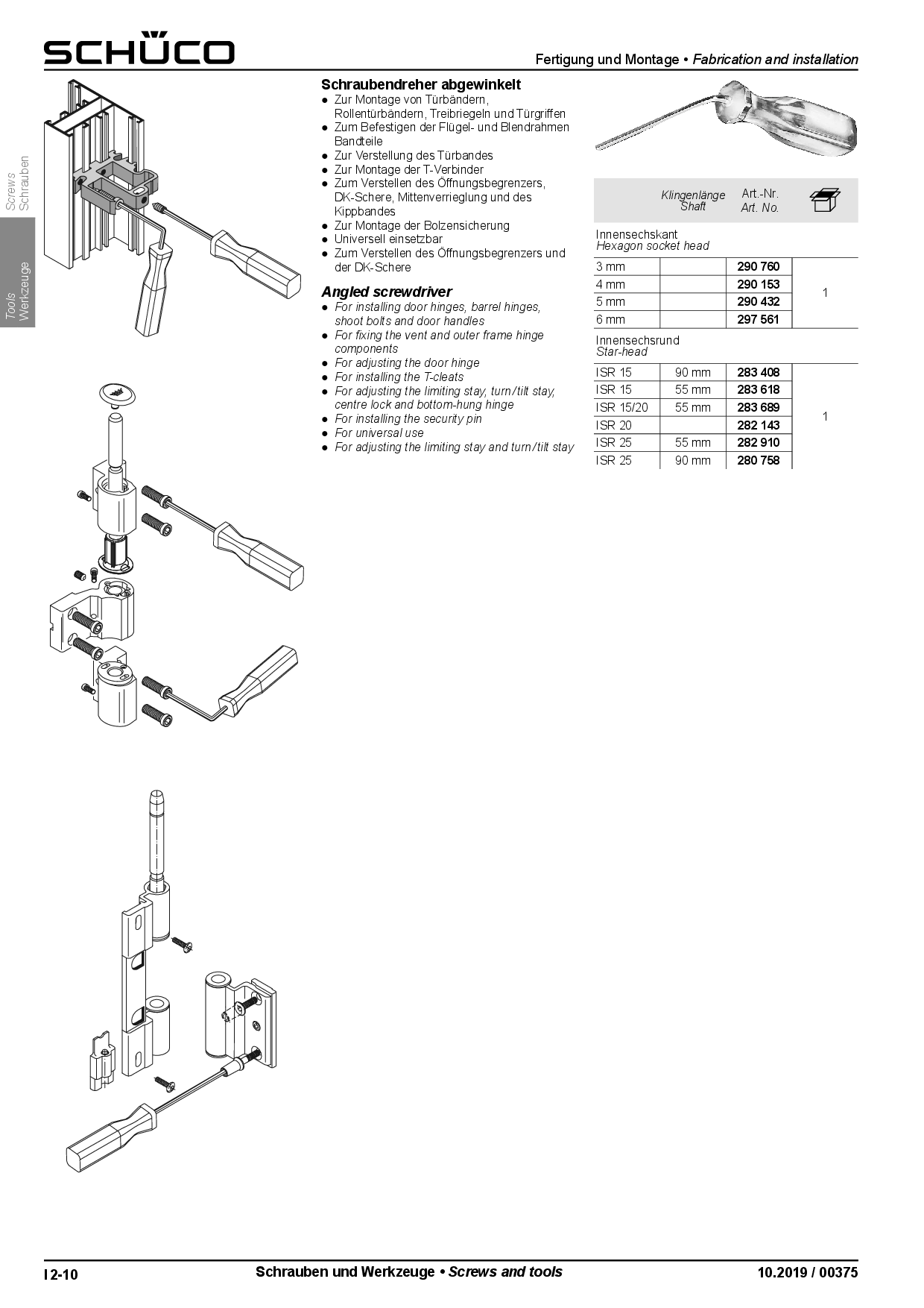
Lieferumfang je Stück: ein Schraubendreher, ohne ZubehörProduktmerkmale:Innensechskant 4 mmuniversell einsetzbar zur Montage von Türbändern Rollentürbändern Treibriegeln Türgriffen T-Verbindern Bolzensicherungenzum Befestigender Bandteile von Flügel- und Blendrahmenzum Verstellen vonÖffnungsbegrenzernDreh-Kipp-ScherenMittenverriegelungenKippbändernHerstellerangaben:Firma: SchücoHerstellerartikel: 290153Hinweis: Wir empfehlen, das Austauschen von Beschlagteilen sowie das Justieren des Fensters/der Tür durch eine Fachkraft vornehmen zu lassen


Lieferumfang je Stück: ein Schraubendreher, ohne ZubehörProduktmerkmale:Innensechsrund ISR 25Klingenlänge: 90 mmuniversell einsetzbar zur Montage von Türbändern Rollentürbändern Treibriegeln Türgriffen T-Verbindern Bolzensicherungenzum Befestigender Bandteile von Flügel- und Blendrahmenzum Verstellen vonÖffnungsbegrenzernDreh-Kipp-ScherenMittenverriegelungenKippbändernHerstellerangaben:Firma: SchücoHerstellerartikel: 280758Hinweis: Wir empfehlen, das Austauschen von Beschlagteilen sowie das Justieren des Fensters/der Tür durch eine Fachkraft vornehmen zu lassen


Lieferumfang je Stück: ein Aushebe-Werkzeug, ohne ZubehörProduktmerkmale:zur Demontage von Schließrollen und SchließstückenHerstellerangaben:Firma: SchücoHerstellerartikel: 289431Hinweis: Wir empfehlen, das Austauschen von Beschlagteilen sowie das Justieren des Fensters/der Tür durch eine Fachkraft vornehmen zu lassen


Lieferumfang je Stück: ein Schraubendreher, ohne ZubehörProduktmerkmale:Innensechsrund ISR 20 universell einsetzbar zur Montage von Türbändern Rollentürbändern Treibriegeln Türgriffen T-Verbindern Bolzensicherungen zum Befestigender Bandteile von Flügel- und Blendrahmen zum Verstellen vonÖffnungsbegrenzern Dreh-Kipp-Scheren Mittenverriegelungen KippbändernHerstellerangaben:Firma: SchücoHerstellerartikel: 282143Hinweis: Wir empfehlen, das Austauschen von Beschlagteilen sowie das Justieren des Fensters/der Tür durch eine Fachkraft vornehmen zu lassen


Lieferumfang je Stück: ein Schraubendreher, ohne ZubehörProduktmerkmale:Innensechskant 5 mmuniversell einsetzbar zur Montage von Türbändern Rollentürbändern Treibriegeln Türgriffen T-Verbindern Bolzensicherungen zum Befestigen vonder Bandteile von Flügel- und Blendrahmen zum Verstellen vonÖffnungsbegrenzern Dreh-Kipp-Scheren Mittenverriegelungen KippbändernHerstellerangaben:Firma: SchücoHerstellerartikel: 290432Hinweis: Wir empfehlen, das Austauschen von Beschlagteilen sowie das Justieren des Fensters/der Tür durch eine Fachkraft vornehmen zu lassen


Lieferumfang je Stück: ein Schraubendreher, ohne ZubehörProduktmerkmale:Innensechskant 2,5 mmuniversell einsetzbar zur Montage von TürbändernRollentürbändernTreibriegeln TürgriffenT-Verbindernverstellbaren Glasauflagenzum Befestigen vonBolzensicherungen zum Verstellen vonÖffnungsbegrenzernRiegelstückenEcklagernEckumlenkungenHerstellerangaben:Firma: SchücoHerstellerartikel: 290152Hinweis: Wir empfehlen, das Austauschen von Beschlagteilen sowie das Justieren des Fensters/der Tür durch eine Fachkraft vornehmen zu lassen


Lieferumfang je Stück: eine Bohrvorrichtung, ohne ZubehörProduktmerkmale:zur Positionierung der Bohrungen für Drehsperren Herstellerangaben:Firma: SchücoHerstellerartikel: 296206Hinweis: Wir empfehlen, das Austauschen von Beschlagteilen sowie das Justieren des Fensters/der Tür durch eine Fachkraft vornehmen zu lassen


Lieferumfang je Stück: eine Profipistole, inkl. biegsamen VerlängerungsschlauchProduktmerkmale:für Brandschutz-Pistolenschaum 288537leichte Pistole mit robustem Gehäusenach Benutzung mit aufgeschraubter Pistolenschaum-Dose aufbewahrenHerstellerangaben:Firma: SchücoHerstellerartikel: 282142Hinweis: Wir empfehlen, das Austauschen von Beschlagteilen sowie das Justieren des Fensters/der Tür durch eine Fachkraft vornehmen zu lassen


Lieferumfang je Stück: ein Schraubendreher, ohne ZubehörProduktmerkmale:Innensechsrund ISR 15/20 Klingenlänge: 100 mmmit Quergriffuniversell einsetzbar Herstellerangaben:Firma: SchücoHerstellerartikel: 283688Hinweis: Wir empfehlen, das Austauschen von Beschlagteilen sowie das Justieren des Fensters/der Tür durch eine Fachkraft vornehmen zu lassen

Lieferumfang je Stück: ein Kugelkopfdreher-Set, bestehend aus2 Schlitzklingen (4x 0,6/6 x 1 und 5 x 0,8/7 x 1,2)1 Kreuzklinge (Größe 1/Größe 2)1 Pozidrivklinge (Größe 1/Größe 2)3 Sechskantklingen (4/4 - 5/5 - 6/6)3 Innensechsrundklingen (ISR10 / ISR15 - ISR20 / ISR25 - ISR30 / ISR40)Produktmerkmale:universell einsetzbarHerstellerangaben:Firma: SchücoHerstellerartikel: 282046Hinweis: Wir empfehlen, das Austauschen von Beschlagteilen sowie das Justieren des Fensters/der Tür durch eine Fachkraft vornehmen zu lassen


Lieferumfang je Stück: ein Montageschlüssel, ohne ZubehörProduktmerkmale:Innensechsrund ISR 15 BO für einfache Entkopplung der Öffnungsbegrenzer 277441 + 277442Herstellerangaben:Firma: SchücoHerstellerartikel: 289877Hinweis: Wir empfehlen, das Austauschen von Beschlagteilen sowie das Justieren des Fensters/der Tür durch eine Fachkraft vornehmen zu lassen


Lieferumfang je Stück: eine Dichtungsschere, ohne ZubehörProduktmerkmale:Schnittbreite 30 mmUniversell einsetzbar zum Ausklinken von DichtungenHerstellerangaben:Firma: SchücoHerstellerartikel: 280947Hinweis: Wir empfehlen, das Austauschen von Beschlagteilen sowie das Justieren des Fensters/der Tür durch eine Fachkraft vornehmen zu lassen


Lieferumfang je Stück: eine Bohrvorrichtung, ohne ZubehörProduktmerkmale:zum nachträglichen Einsetzen von Schließrollen und Schließstückenfür Bohrer mit 7,5 mm Durchmesser Herstellerangaben:Firma: SchücoHerstellerartikel: 289453Hinweis: Wir empfehlen, das Austauschen von Beschlagteilen sowie das Justieren des Fensters/der Tür durch eine Fachkraft vornehmen zu lassen


Lieferumfang je Stück: eine Bohrvorrichtung, ohne ZubehörProduktmerkmale:zur Positionierung von Bohrungen für Schließstück RC2 schraubbarauch bei nachträglichem Einbau möglichfür Bohrer mit 7,5 mm Durchmesser Herstellerangaben:Firma: SchücoHerstellerartikel: 289985Hinweis: Wir empfehlen, das Austauschen von Beschlagteilen sowie das Justieren des Fensters/der Tür durch eine Fachkraft vornehmen zu lassen


Lieferumfang je Stück: eine Montagehilfe, ohne ZubehörProduktmerkmale:Einschlaghilfe zur Montage von Schließrollen und Schließstücken Herstellerangaben:Firma: SchücoHerstellerartikel: 289441Hinweis: Wir empfehlen, das Austauschen von Beschlagteilen sowie das Justieren des Fensters/der Tür durch eine Fachkraft vornehmen zu lassen


Lieferumfang je Stück: eine Demontagezange, ohne ZubehörProduktmerkmale:zur Demontage von Beschlagsteilen mit Spange (Scheren, Eckumlenkungen, Ecklager) Herstellerangaben:Firma: SchücoHerstellerartikel: 289430Hinweis: Wir empfehlen, das Austauschen von Beschlagteilen sowie das Justieren des Fensters/der Tür durch eine Fachkraft vornehmen zu lassen


Lieferumfang je Stück: ein Schraubenwerkzeug, ohne ZubehörProduktmerkmale:mit Quergriffmit biegsamer Wellemit Bitaufnahme Herstellerangaben:Firma: SchücoHerstellerartikel: 283693Hinweis: Wir empfehlen, das Austauschen von Beschlagteilen sowie das Justieren des Fensters/der Tür durch eine Fachkraft vornehmen zu lassen


Lieferumfang je Stück: ein Bit-Einsatz, ohne ZubehörProduktmerkmale:verlängerter Bit-Einsatz Herstellerangaben:Firma: SchücoHerstellerartikel: 289453Hinweis: Wir empfehlen, das Austauschen von Beschlagteilen sowie das Justieren des Fensters/der Tür durch eine Fachkraft vornehmen zu lassen